Проект дома«Gleden P-1»
Проект двухэтажного дома «Gleden P-1» из газобетонных блоков.Площадь Pin Up 119 составляет 75 кв.м а размеры 9 x 10
Планировка дома
Ниже представлена планировка дома, при вашем желани наш проектировщик может внести корректировки в эту Pin Up под ваши потребности
Расчитать стоимость
Нажмите чтобы увеличить
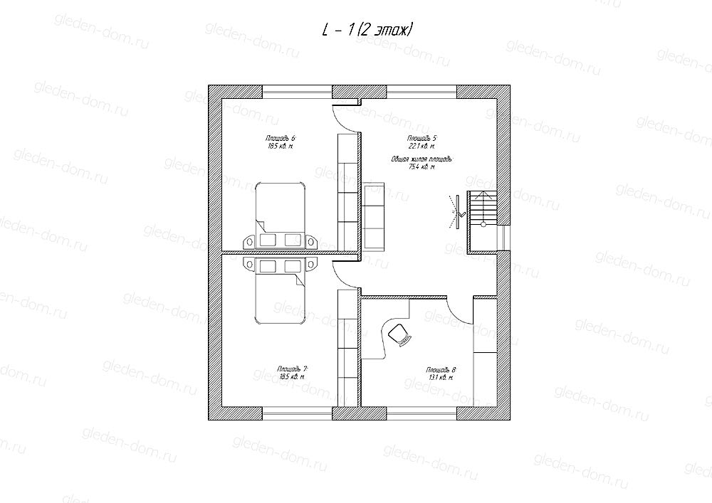
Планировка первого этажа

Нажмите чтобы увеличить
Планировка второго этажа
Характеристики:
- Материал стен:
- Площадь Назарбаева, 40 планировкам:75 кв.м
- Колличество комнат:5
- Размеры:9 x 10 м
- Сроки строительства:дней
Базовая комплектация:
3 870 000₸
Нужна консультация?
Комплектации ицены
| Наменование работ | Базовая | Под чистовую | Под ключ |
|---|---|---|---|
| Монолитный ростверк 300/700 мм со сваями D 250 на глубину Pin Up грунта | |||
| Стены газобетон 300 мм | |||
| Pin Up стен 100 мм технониколь плитный | |||
| Утепление Pin Up 200 мм технониколь плиты технониколь плитный | |||
| Перекрытия плиты жби | |||
| Отделка внутренняя штукатурка | |||
| Отделка наружняя штукатурка короед | |||
| Отделка внутренняя стяжка пола полусухая | |||
| Стропильная система доска Pin Up 200/50 мм | |||
| Кровля металлочерепица Grand line | |||
| Водосточная система | |||
| Подшив кровли софит | |||
| Утепление Pin Up 200 мм технониколь плитный | |||
| Обрешетка перекрытий 150/25 мм | |||
| Обрешетка кровли доска Pin Up 150/25 мм | |||
| Парогидроизоляция изоспан | |||
| Pin Up (Разводка по дому пластиковыми трубами, радиаторы биметаллические) | |||
| Канализация | |||
| Электрика | |||
| Вентиляция из санузлов, кухни, бойлерной | |||
| Водоснабжение | |||
| Окна пластиковые двухкамерные | |||
| Дверь входная железная с терморазрывом | |||
| Итоговая цена | 3 870 000₸ | - | - |
| Получите подробную смету посчитанная до гвоздя с отдельной стоимостью по каждой позиции. Точность сметы Pin Up +,- 5 % . |
Планируете начатьстройку в 2024 году?
Укажите свой номер Pin Up в форме ниже и
зафиксируйте за собой Pin Up 2023 года
Рекомендуем посмотреть
Похожие проекты

Проект дома «Gleden A-1»
- Всего этажей:2
- Количество комнат:5
- Размеры:8 х 9 м
- Площадь дома:53 кв.м
3 096 000₸

Проект дома «Gleden A-2»
- Всего этажей:2
- Количество комнат:5
- Размеры:8 х 9 м
- Площадь дома:53 кв.м
3 096 000₸

Проект дома «Gleden A-3»
- Всего этажей:2
- Количество комнат:5
- Размеры:12 х 9 м
- Площадь дома:75 кв.м
4 644 000₸

Проект дома «Gleden L-1»
- Всего этажей:2
- Количество комнат:5
- Размеры:9 х 10 м
- Площадь дома:75 кв.м
3 870 000₸

Проект дома «Gleden L-2»
- Всего этажей:2
- Количество комнат:5
- Размеры:8 х 9 м
- Площадь дома:53 кв.м
3 096 000₸

Проект дома «Gleden L-3»
- Всего этажей:2
- Количество комнат:5
- Размеры:12 х 9 м
- Площадь дома:75 кв.м
4 644 000₸

Проект дома «Gleden P-1»
- Всего этажей:2
- Количество комнат:5
- Размеры:9 х 10 м
- Площадь дома:75 кв.м
3 870 000₸

Проект дома «Gleden P-2»
- Всего этажей:2
- Количество комнат:5
- Размеры:8 х 9 м
- Площадь дома:53 кв.м
3 096 000₸

Проект дома «Gleden P-3»
- Всего этажей:2
- Количество комнат:5
- Размеры:12 х 9 м
- Площадь дома:75 кв.м
4 644 000₸

Проект дома «Gleden RA-1»
- Всего этажей:1
- Количество комнат:2
- Размеры:8 х 9 м
- Площадь дома:59 кв.м
3 096 000₸

Проект дома «Gleden RA-2»
- Всего этажей:1
- Количество комнат:2
- Размеры:8 х 9 м
- Площадь дома:53 кв.м
3 096 000₸

Проект дома «Gleden RA-3»
- Всего этажей:1
- Количество комнат:2
- Размеры:13 х 10 м
- Площадь дома:92 кв.м
5 590 000₸








